




Тристаен апартамент в кв. Овча купел
€235,000 (€2,790/m2)
459,620.05 лв. (5,457.37 лв./m2)
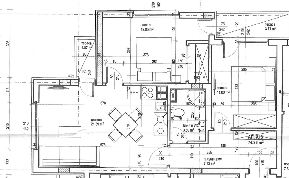
Архитектурен план


РС ЕСТЕЙТС предлага за продажба
тристаен апартамент в нова жилищна сграда в кв. Овча купел, разположен в близост до бул. „Президент Линкълн“ и на пешеходно разстояние от спирки на градски транспорт метро станция Горна Баня, търговски обекти и учебни заведения.
Локация:
Имотът се намира в един от най-бързо развиващите се райони на София – кв. Овча купел, в близост до бул. „Президент Линкълн“, с удобен достъп до основни пътни артерии, НБУ и метрото.
Разпределението е:
Апартаментът е със застроена площ 74,34 кв.м. и обща площ 84,22 кв.м., като включва:
• преддверие
• просторна дневна с кухненски бокс
• две спални, едната с преход
• складово помещение
• баня с тоалетна
• две тераси
Имотът е разположен на 4-ти етаж от 8.
Предимства на имота:
• ново строителство, с Акт 15; срок за Акт 16 - Пролетта 2026г.
• издава се по БДС, съгласно одобрен проект за енергийна ефективност
• отопление на ТЕЦ
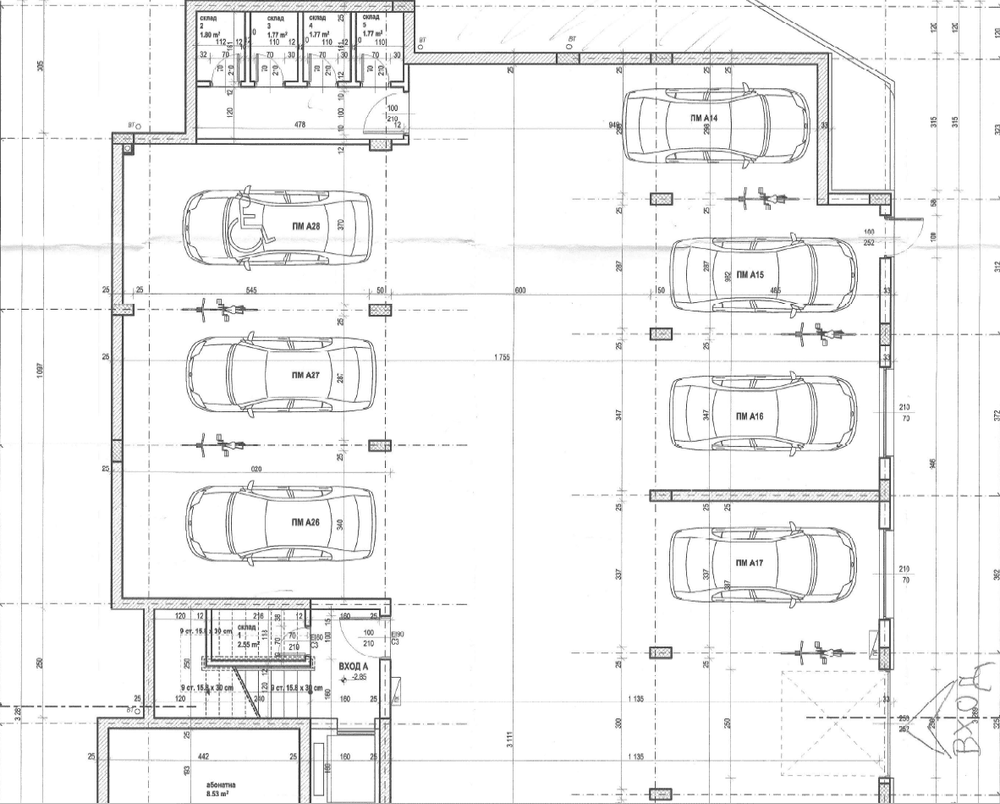
• възможност за закупуване на подземно паркомясто срещу допълнително заплащане 25000 евро
• функционално разпределение, подходящо както за живеене, така и за инвестиция
• модерна сграда с комфортни общи части
Имот, който съчетава удобна локация, ново строителство и практичен вътрешен дизайн – отлично предложение за бъдещ дом или инвестиция.
Оглед на имота:
Можем да организираме оглед на имота в удобно за Вас време. За целта, свържете се с отговорния за офертата брокер и му кажете кога бихте искали да направите оглед.
Резервация на имота:
Имотът може да бъде резервиран и свален от продажба със заплащане на депозит, след което се прекратява провеждането на огледи с други купувачи и започва подготовка на документите за сключване на предварителен и окончателен договор. Свържете се с отговорния брокер за този имот за подробна информация.
Финансиране на имота:
Агенцията си партнира с най-големия кредитен посредник в България и можем да ви съдействаме с преференциални условия за жилищно кредитиране.