


Съвременна еднофамилна къща в Хераково
€350,000 (€1,220/m2)
684,540.50 лв. (2,385.16 лв./m2)

Архитектурен план






С удоволствие ви представяме най-новия обект в нашето портфолио – модерна двуетажна къща с разширена застроена площ от 287,38 кв.м и 600 кв.м двор, вече с акт 14, разположена в с. Хераково, само на 20 минути от столицата.
Тази къща се отличава с висококачествено строителство, висока енергоефективност и функционално разпределение на помещенията. Намиращата се на уникална локация, тя предлага баланс между близостта до градския живот и тишината, спокойствието и чистия въздух на селската местност.
Разпределението на къщата включва:
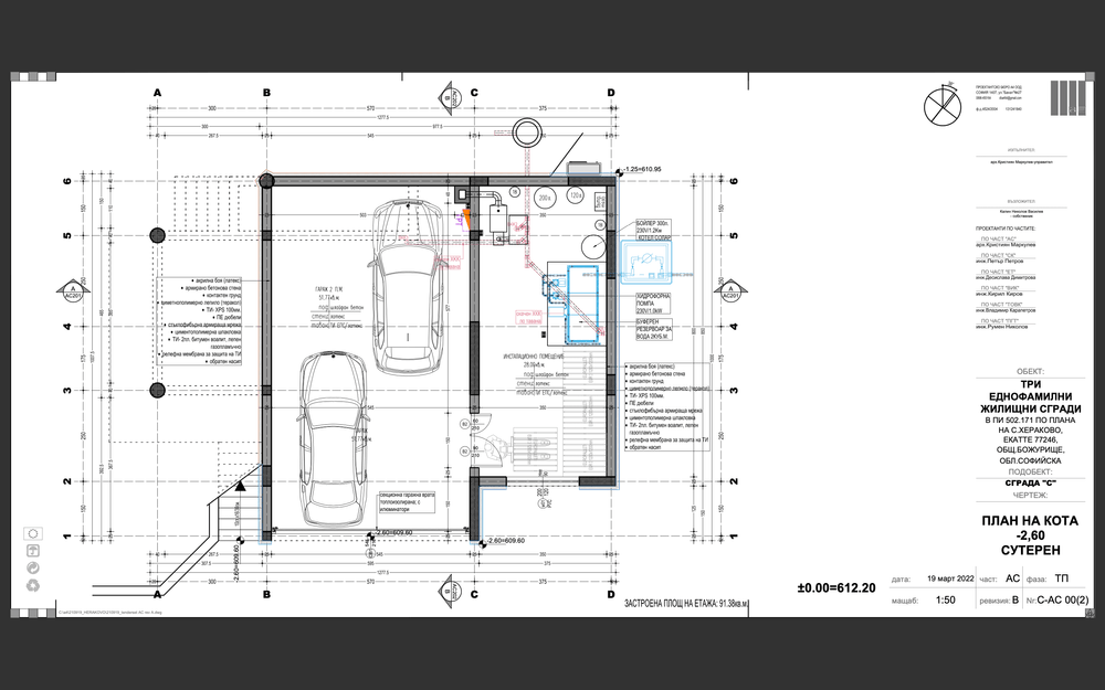
- Сутерен със застроена площ от 91,38 кв.м, който включва гараж за 2 коли с площ от 51 кв.м и котелно помещение с площ от 28 кв.м.
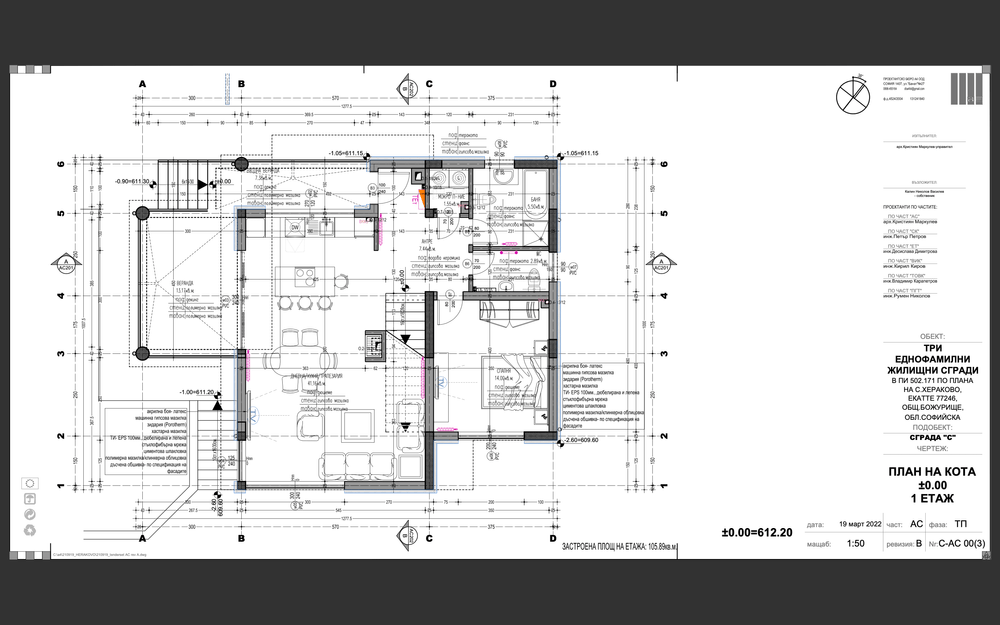
- Първи етаж с чиста застроена площ от 105,98 кв.м, който включва входно антре (7,38 кв.м), хол с трапезария и кухня (41,16 кв.м), баня с тоалетна (5,5 кв.м) и отделна тоалетна (2,89 кв.м).
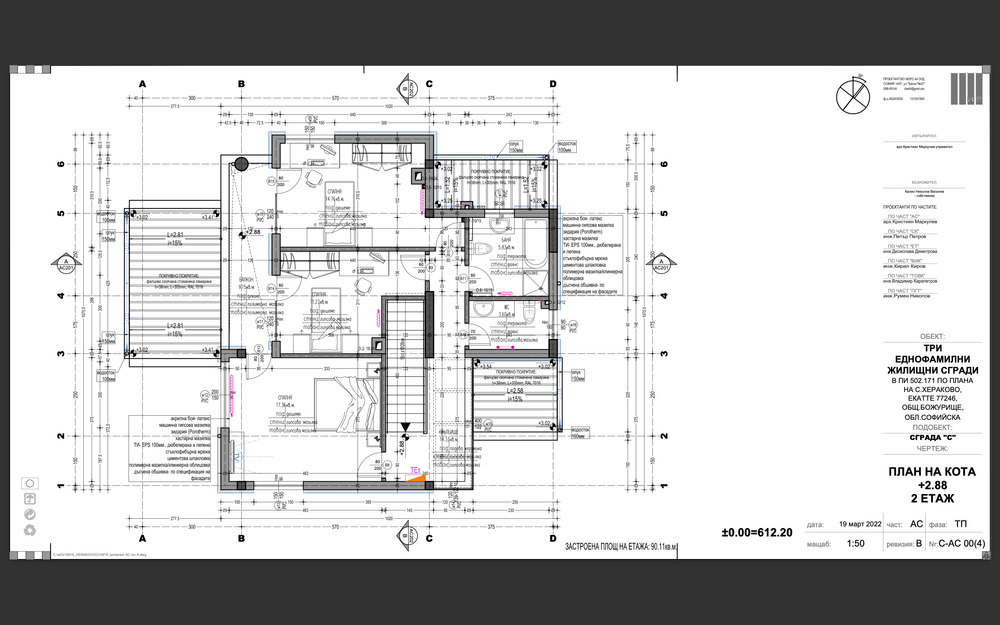
- Втори етаж със застроена площ от 90,11 кв.м, състоящ се от 3 спални, баня с тоалетна, отделна тоалетна и балкон. Разпределението е както следва: коридор (14,33 кв.м), спалня 1 (17,36 кв.м), спалня 2 (11,23 кв.м), спалня 3 (14,36 кв.м) и балкон (9,15 кв.м), към който има излаз от трите спални.
Тази къща се строи с изключително висококачествени материали, което гарантира висока степен на енергоефективност. В съседство на този имот предлагаме и готова обзаведена къща близнак пред акт 16. При интерес можем да ви предоставим по-подробна информация за нея.
Не се колебайте да се свържете с нас, за да получите повече информация или да запишете оглед на този прекрасен имот. РС Естейтс винаги е на разположение, за да ви помогне да намерите перфектния дом за вас.