




Самостоятелна къща с. Мусачево
€330,000 (€1,626/m2)
645,423.90 лв. (3,179.43 лв./m2)

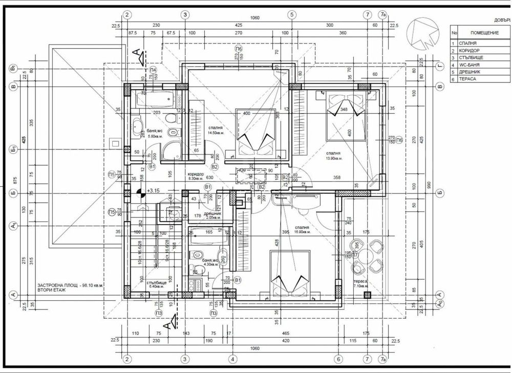
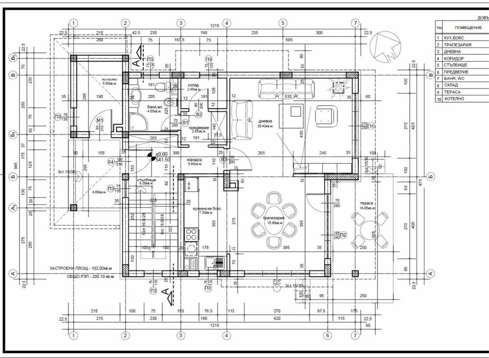
Архитектурен план



РС ЕСТЕЙТС предлага за продажба:
Двуетажна къща с площ 203 кв.м, част от малък комплекс от 7 самостоятелни къщи. Имотът е с модерна архитектура, газифициран, с височина на помещенията 3 м на първи етаж, и ще бъде завършен с висококачествени материали по БДС стандарт. Очаквано начало на строеж октомври 2025 и въвеждане в експлоатация (Акт 16) - лятото на 2026 година.
Локация:
Къщата е разположена в с. Мусачево, само на 30 минути от центъра на София, в спокоен и екологично чист район с прекрасна гледка към Стара планина. Районът предлага удобен достъп до магистрала Тракия (12 минути) и магистрала Хемус (10 минути). Само на няколко километра се намира град Елин Пелин, където са налични училища, детски градини, търговски обекти и административни услуги.
Разпределението е:
- Първи етаж: антре със стълбище за втория етаж, санитарен възел, склад, просторна дневна с излаз към тераса и двор, кухненски бокс, котелно помещение с отделен вход.
- Втори етаж: три спални (две с излаз към тераса), две бани с тоалетни, коридор и стълбище.
Предимства на имота:
- Местоположение: близост до София и магистралите, спокойна среда с чист въздух и живописни гледки.
- Качество на строителството: използвани съвременни технологии и висок клас материали.
- Инфраструктура: асфалтов път, изградена централна канализация, газификация и пречиствателна станция.
- Удобство: функционално вътрешно разпределение, високи помещения и просторен двор.
- Статус: къщата е пред завършване, което позволява клиентите да се уверят в качеството на строителството.
Оглед на имота:
Можем да организираме оглед на имота в удобно за Вас време. За целта, свържете се с отговорния за офертата брокер и му кажете кога бихте искали да направите оглед.
Резервация на имота:
Имотът може да бъде резервиран и свален от продажба със заплащане на депозит, след което се прекратява провеждането на огледи с други купувачи и започва подготовка на документите за сключване на предварителен и окончателен договор. Свържете се с отговорния брокер за този имот за подробна информация.
Финансиране на имота:
Агенцията си партнира с най-големия кредитен посредник в България и можем да ви съдействаме с преференциални условия за жилищно кредитиране.