Ресторант със зимна и лятна градина в Центъра
€9,500 (€12/m2)
18,580.39 лв. (22.49 лв./m2)

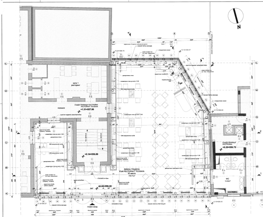
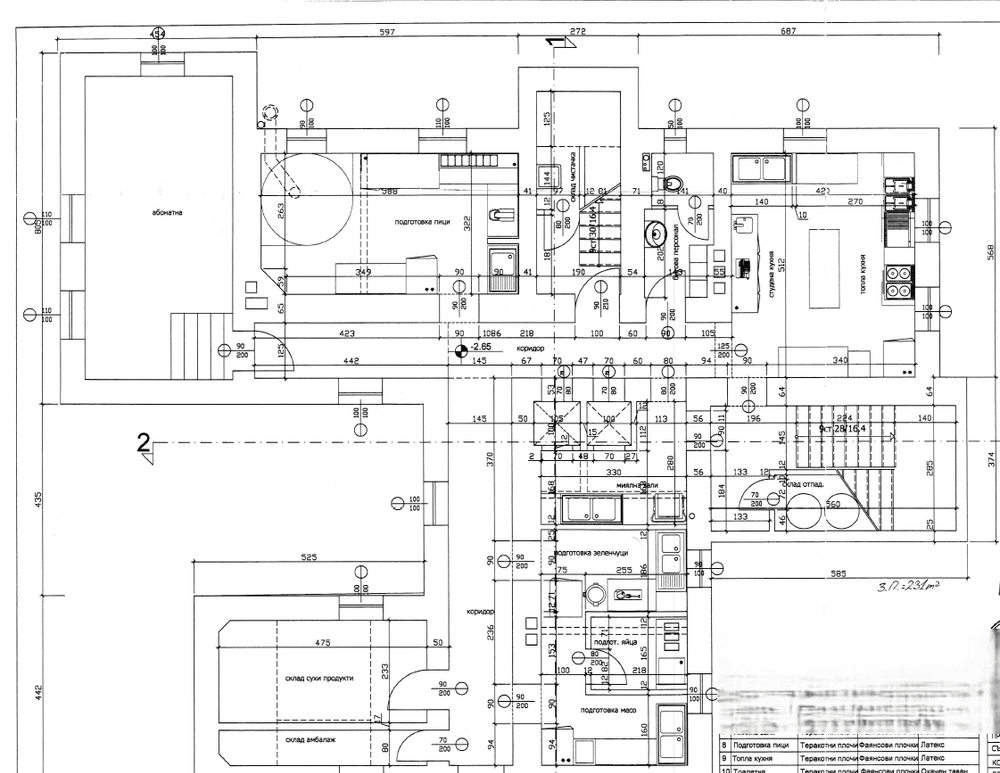
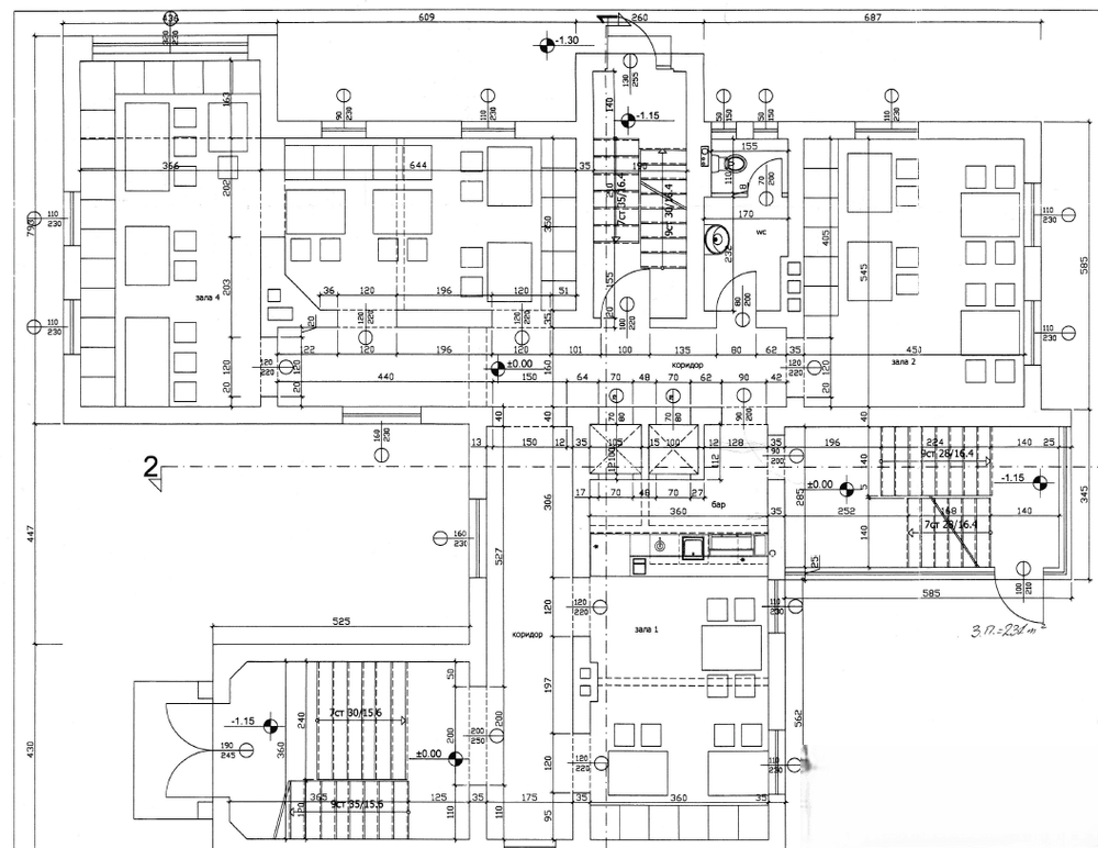
Архитектурен план




РС ЕСТЕЙТС предлага под наем:
ресторант с отлична локация в централната част на София, в непосредствена близост до бул. „Витоша“ и НДК. Обектът е готов за работа и предлага възможност за целогодишна експлоатация с вътрешна и външна градина.
Посочената цена е без ДДС!
Локация:
Имота се намира в динамична и престижна зона на столицата с постоянен поток от хора и лесен достъп от главни булеварди. В близост има множество офиси, хотели и жилищни сгради, което осигурява постоянен клиентски поток през цялата година.
Характеристики на имота:
- Обща площ: 826 кв.м
- Разпределение:
• Сутерен (кухня) – 213 кв.м
• Първи етаж – 237 кв.м (около 70 седящи места)
• Зимна градина – 216 кв.м (около 90 седящи места)
• Лятна градина – 160 кв.м (около 70 седящи места)
Отопление и оборудване:
- ТЕЦ в основната сграда
- Климатизация на ток в зимната градина
- СОТ, видеонаблюдение и озвучителна система
- Два кухненски асансьора
- Три санитарни възела за клиенти
Паркиране:
Възможност за ползване на паркоместа от прилежащ паркинг.
Лятната градина заема част от паркинга през периода май – септември, като при интерес наемателят може да изгради покрита целогодишна градина.
Условия за наемане:
Изискват се три депозита, като е възможно разсрочване по договаряне.
Предимства на имота:
- Централна и престижна локация с висок човекопоток
- Просторни зали с гъвкаво вътрешно разпределение
- Възможност за развитие на утвърден или нов ресторантски бранд
- Отлична инфраструктура и достъпност
Този имот е подходящ както за изискан ресторант, така и за модерен бар или концептуално заведение с целогодишна посещаемост.
Оглед на имота:
Можем да организираме оглед с предварителна уговорка на имота в удобно за Вас време. За целта, свържете се с отговорния за офертата брокер и му кажете кога бихте искали да направите оглед.