




Просторна къща в затворен комплекс в кв. Симеоново
€670,000 (€3,116/m2)
1,310,406.10 лв. (6,094.91 лв./m2)
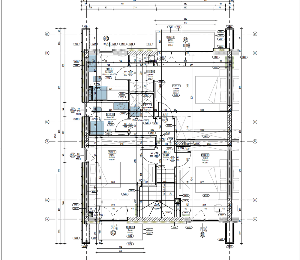
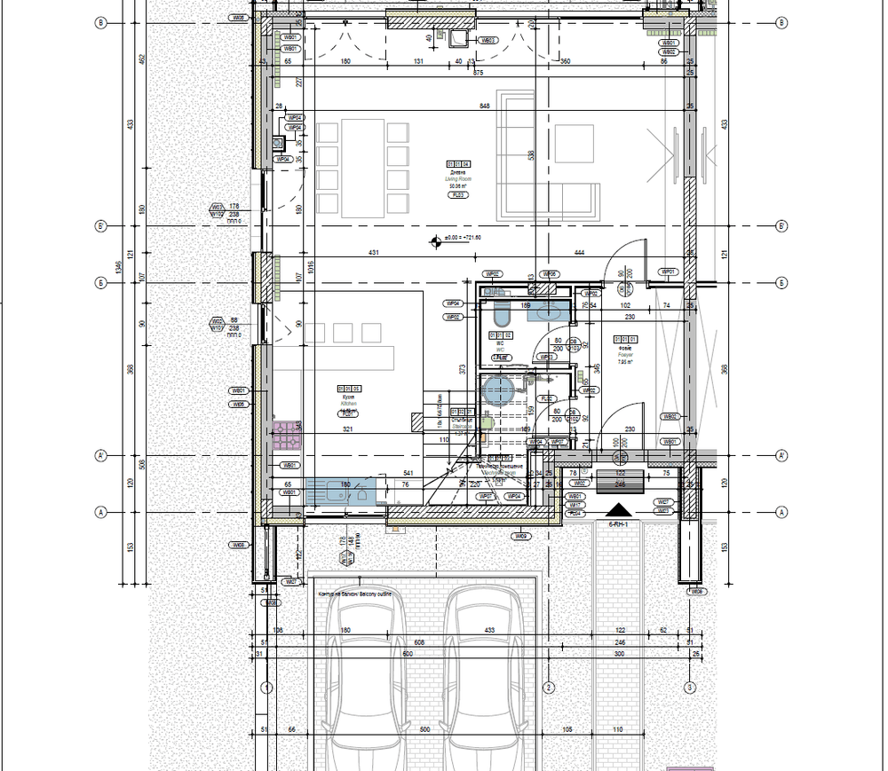
Архитектурен план


РС ЕСТЕЙТС предлага за продажба:
Къща на два етажа с РЗП от 215 кв.м и собствен двор от 111 кв.м, разположена в модерен жилищен комплекс в полите на Витоша. Имотът е част от втори етап на строителството, с издаден Акт 14 и очакван Акт 16 през март 2026 г. Към къщата са предвидени две паркоместа, разположени пред самия имот.
Посочената цена е без ДДС.
Локация:
Комплексът е изграден в красив парк с тиха река и множество кътчета за отдих и разходка, като е планирано засаждането на над 3000 дървета. Местоположението съчетава спокойствие и природа с удобен достъп до града – в близост има лифт към Витоша, голям търговски център, магазини за обзавеждане, ресторанти, както и спирки на градски транспорт и бъдеща метростанция.
Разпределение:
- Партерен етаж: дневна, кухня, трапезария, тоалетна за гости, техническо помещение, антре.
- Първи етаж: родителска спалня с дрешник и баня, две спални, баня, мокро помещение.
- Двор: зелена площ за индивидуално ползване – 111 кв.м.
- Паркоместа: две паркоместа пред всяка къща.
Предвидена е вътрешна улична мрежа със споделено пешеходно и автомобилно движение, което насърчава социалната среда и спокойствието на обитателите.
Такса поддръжка: 1,52 евро/м2 върху площта на къщата.
Предимства:
- Спокойна среда в затворен комплекс с денонощна охрана и поддръжка.
- Минимум две паркоместа за всяко жилище.
- Близост до търговски обекти, мол, ресторанти, кино и планиран супермаркет в рамките на комплекса.
- Допълнителни подобрения в имота: подово отопление във всички помещения на двата етажа, конвектори за отопление и охлаждане, подготовка за монтаж на термопомпа (не е включена в цената).
- Съвременна концепция за живот сред природата – хармонична среда, местна растителност, зелени пространства и кътчета за отдих.
- След Акт 16 ще има възможност за избор на тип пергола за външните паркоместа.
Оглед на имота:
Можем да организираме оглед на имота в удобно за Вас време. За целта, свържете се с отговорния за офертата брокер и му кажете кога бихте искали да направите оглед.
Резервация на имота:
Имотът може да бъде резервиран и свален от продажба със заплащане на депозит, след което се прекратява провеждането на огледи с други купувачи и започва подготовка на документите за сключване на предварителен и окончателен договор. Свържете се с отговорния брокер за този имот за подробна информация.
Финансиране на имота:
Агенцията си партнира с най-големия кредитен посредник в България и можем да ви съдействаме с преференциални условия за жилищно кредитиране.