


Просторен тристаен апартамент в кв. Лагера
€340,000 (€2,450/m2)
664,982.20 лв. (4,792.32 лв./m2)

Архитектурен план



РС Естейт представя за продажба:
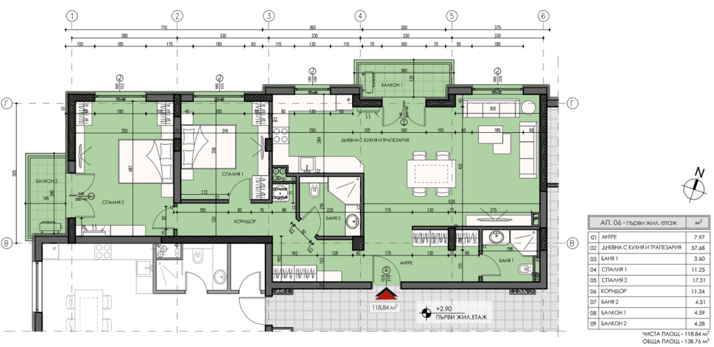
Просторен тристаен апартамент с площ 138.76 кв.м., разположен на първи етаж в бутикова сграда от висок клас – „Лагера Бутик“. Чиста жилищна площ: 118.84 кв.м. и общи части: 19.92 кв.м. Складово помещение на кота 0. За имота е разработен архитектурен проект за преустройство на четиристаен апартамент.
Етап на строителството АКТ 15
Има опция за покупка на подземно паркомясто в съседната сграда на цена от 25000 евро.
Локация:
Имотът се намира в ж.к. „Лагера“ – спокоен и зелен квартал в югозападната част на София, с отличен достъп до централните градски зони и основни булеварди. Районът е предпочитан за живеене поради баланса между тишина, зеленина и градски удобства.
Сградата е част от елегантния архитектурен ансамбъл „Лагера Тюлип“, състоящ се от три модерни сгради с обща концепция и стил. Разположена е върху самостоятелен терен от 1954 кв.м. и разполага с богато озеленени зони, детски кът, открит паркинг и подземни гаражи.
Разпределение:
Просторна дневна с кухненски бокс и трапезария
Две самостоятелни спални
Баня с тоалетна
Втора тоалетна
Антре и мокро помещение
Изложение - Запад.
Отопление - ТЕЦ и разводки за климатици.
Предимства на имота:
Сграда с модерна визия, вентилируема фасада и иновативен топлоизолационен пакет
Висококачествени строителни материали
Отлична вътрешна организация и функционалност
Светли и просторни помещения
Удобства за семейства с деца и хора с ограничена подвижност
Възможност за закупуване на подземен гараж
Контролиран достъп и добре поддържани общи части
Престижна локация с всички необходими удобства на пешеходно разстояние
За строителството на „Лагера Бутик“ инвеститорът AFI Bulgaria се доверява на Elitе Building Company– компания с доказан професионализъм в проектирането и изграждането на жилищни и инфраструктурни обекти. С богат опит, модерен ресурс и внимание към всеки детайл, Elitе Building Company гарантира високо качество и надеждност на всяка фаза от строителния процес.
Оглед на имота:
Можем да организираме оглед на имота в удобно за Вас време. За целта, свържете се с отговорния за офертата брокер и му кажете кога бихте искали да направите оглед.
Резервация на имота:
Имотът може да бъде резервиран и свален от продажба със заплащане на депозит, след което се прекратява провеждането на огледи с други купувачи и започва подготовка на документите за сключване на предварителен и окончателен договор. Свържете се с отговорния брокер за този имот за подробна информация.
Финансиране на имота:
Агенцията си партнира с най-големия кредитен посредник в България и можем да ви съдействаме с преференциални условия за жилищно кредитиране.