




Къща в Детски град
€420,000 (€2,819/m2)
821,448.60 лв. (5,513.08 лв./m2)

Архитектурен план




РС Естейтс предлага за продажба:
Къща в к-с Bells Houses, местност Детски град, Панчарево. Къщата е на втора линия в комплекс от 12 бр. еднофамилни жилищни сгради пред Акт 16.
Къщата е с РЗП 149 кв.м., покривна тераса 57 кв.м. (невключена в площта на къщата) и собствен двор 100 кв.м. Към нея са предвидени 2 бр. наземни паркоместа. Парцелът разполага със собствен подход и общи части, където също е възможно паркиране на автомобили. Изградена е заготовка за термопомпа и подово отопление. Охлаждането е посредством конвектори, свързани с термопомпената инсталация.
Локация:
Комплексът се намира в кв. Панчарево, местност Детски Град, в непосредствена близост до комплекс Оазис и Англо-Американско училище. Достъпът до централната и периферна градска част е бърз и лесен посредством Самоковско шосе и Околовръстен път.
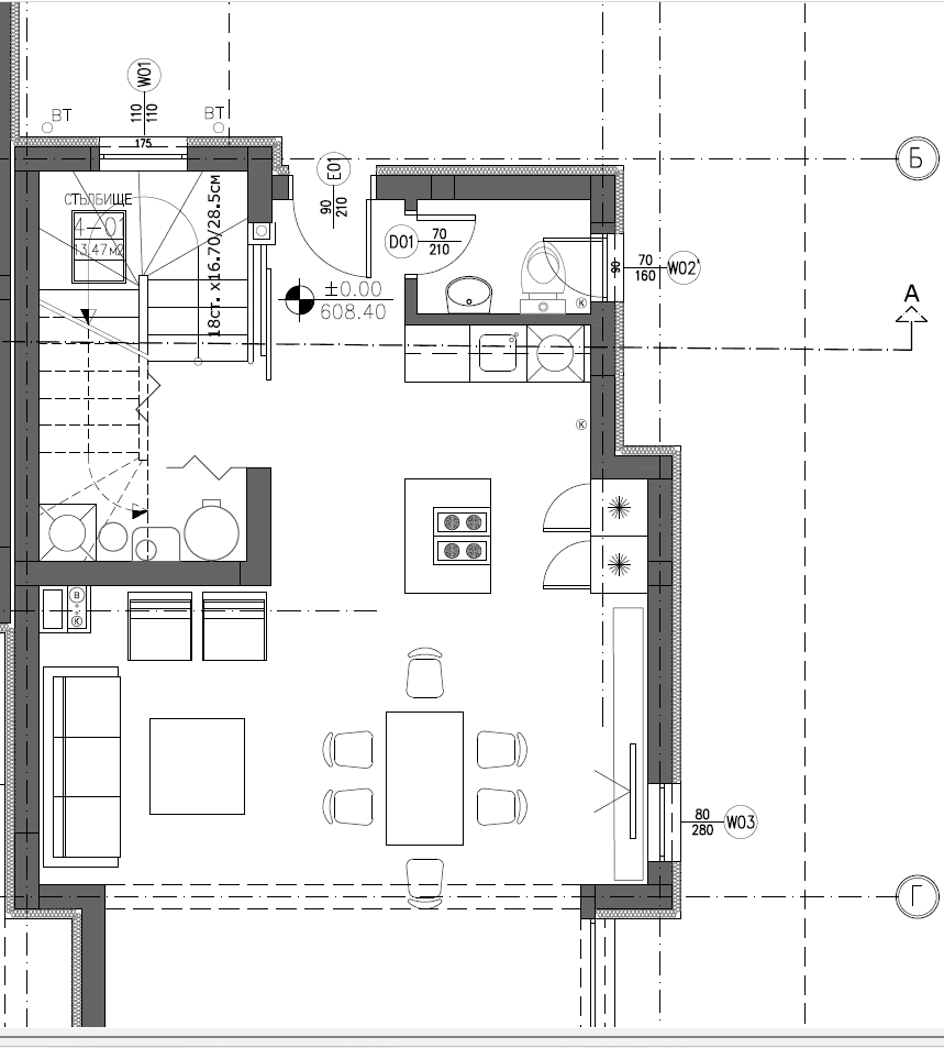
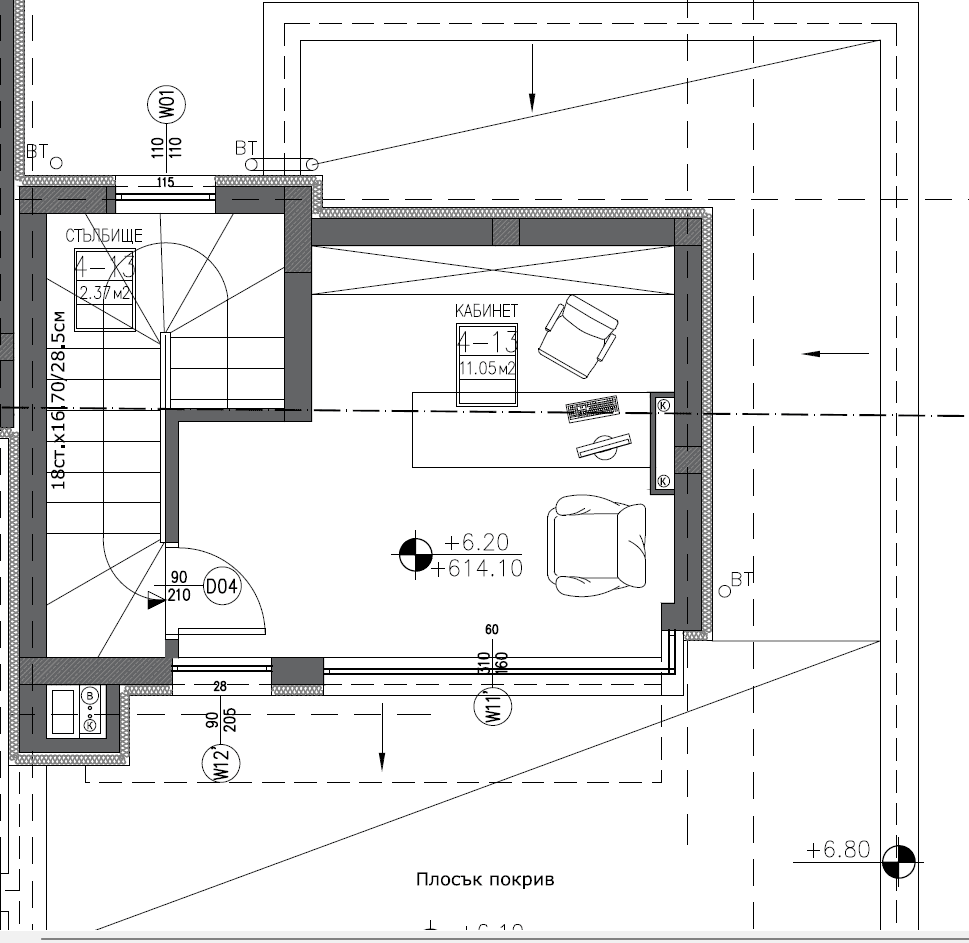
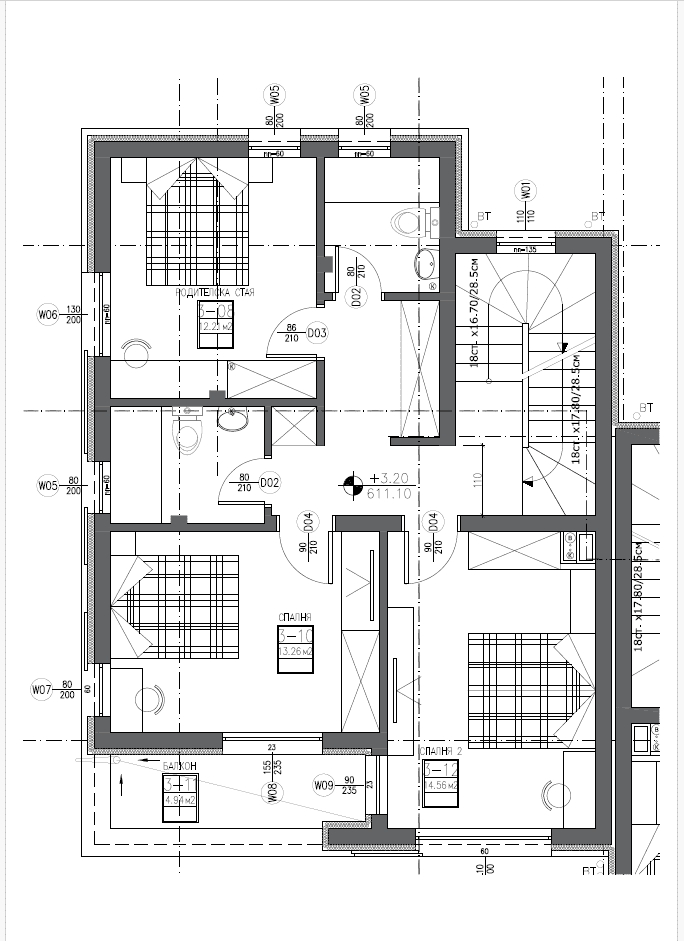
Разпределението е:
Партерен етаж: входно преддверие, техническо/гардеробно помещение, тоалетна, стълбищна клетка и хол с трапезария и кухня. Холът, трапезарията и кухнята са решени като общо пространство. Холната част е ориентирана в посока югозапад и от нея има пряк достъп до вътрешния двор. Кухненската част е ориентирана в посока запад. Възможност за преработка и разширяване на дневната зона с около 15 кв.м.
Втори етаж: родителска спалня, спалня за гости и детска спалня със самостоятелна баня и дрешник. Родителската спалня и спалнята за гости имат тераси с югозападно изложение и гледка към вътрешния двор.
Трети етаж: кабинет/четвърта спалня и отделен достъп до плоския покрив над втория етаж (явяващ се тераса).
Предимства на имота:
Привилегирован район с чист въздух;
Собствен двор и панорамна гледка към Витоша;
На 20 мин от центъра на града;
Напълно изградена прилежаща инфраструктура;
Изградена канализационна система със собствена пречиствателна станция за отпадни води, както и отвеждане на дъждовна вода.
Оглед на имота:
Можем да организираме оглед на имота в удобно за Вас време. За целта, свържете се с отговорния за офертата брокер и му кажете кога бихте искали да направите оглед.
Резервация на имота:
Имотът може да бъде резервиран и свален от продажба със заплащане на депозит, след което се прекратява провеждането на огледи с други купувачи и започва подготовка на документите за сключване на предварителен и окончателен договор. Свържете се с отговорния брокер за този имот за подробна информация.
Финансиране на имота:
Агенцията си партнира с най-големия кредитен посредник в България и можем да ви съдействаме с преференциални условия за жилищно кредитиране.