




Парцел с проект за къща в с. Хераково
€60,000 (€97/m2)
117,349.80 лв. (190.19 лв./m2)
Архитектурен план


РС ЕСТЕЙТС предлага за продажба:
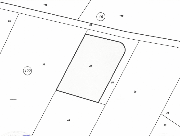
Имот състоящ се от четири урегулирани парцела, находящ се в с.Хераково, махала Бобен, местност ЗАГРАДЯТА. Обща квадратура – 2467кв.м. Три УПИ-на по 617 кв.м и едно УПИ по 616 кв.м.
48-УПИ 617 кв.м. - 65 000 Евро.
45-УПИ 617 кв.м. - 65 000 Евро.
46-УПИ 616 кв.м. - 60 000 Евро.
47-УПИ 617 кв.м. - 60 000 Евро.
Парцелите могат да бъдат закупени както по отделно, така и заедно.
Обявените цени са със ДДС.
Локация:
До имота се достига посредством асфалтова улица ул. Стефан Стамболов, пряка на основната и новоасфалтирана улица ул. Александър Стамболийски, която е основния достъп към селото от бул. България /Автомагистрала Европа. Имота отстои на 660м от бул. България /Автомагистрала Европа, на 8 км. от Божурище, на 14 км от околовръстното на гр. София, на 22 км от центъра на гр. София.
Предимства на имота:
Налични предприсъединителни договори за ток и вода.
В процес на прекарване на ток.
Разрешение за строеж от септември 2025г.
Проекти за 4 бр. еднофамилни къщи с РЗП 300 кв.м всяка.
Оглед на имота:
Можем да организираме оглед на имота в удобно за Вас време. За целта, свържете се с отговорния за офертата брокер и му кажете кога бихте искали да направите оглед.
Резервация на имота:
Имотът може да бъде резервиран и свален от продажба със заплащане на депозит, след което се прекратява провеждането на огледи с други купувачи и започва подготовка на документите за сключване на предварителен и окончателен договор. Свържете се с отговорния брокер за този имот за подробна информация.
Финансиране на имота:
Агенцията си партнира с най-големия кредитен посредник в България и можем да ви съдействаме с преференциални условия за жилищно кредитиране.