




Модерна бутикова сграда в кв. Малинова долина
€139,500 (€2,108/m2)
272,838.29 лв. (4,122.05 лв./m2)
| # | Тип | Площ | Цена | Статус |
|---|---|---|---|---|
| Ап. 1 | Двустаен апартамент | 66.19 m2 | €139,500 | Продаден |
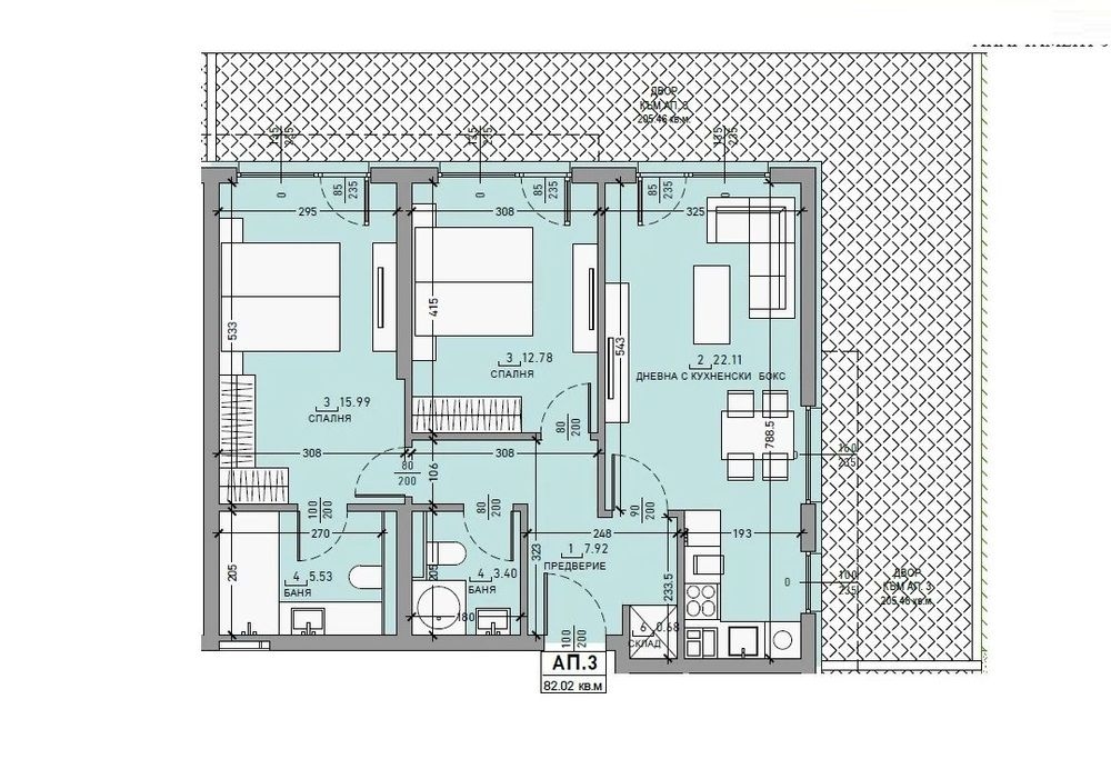
| Ап. 3 | Тристаен апартамент | 96.98 m2 | €258,000 | Свободен |
| Ап. 4 | Двустаен апартамент | 62.16 m2 | €165,000 | Свободен |
Архитектурен план





РС ЕСТЕЙТС предлага за продажба:
Нова бутикова жилищна сграда, разположена в предпочитаната част на кв. Малинова долина. Перспективен район с висока инвестиционна стойност и стабилен интерес за дългосрочно отдаване под наем.
Тип имот: Двустайни и тристайни апартаменти
Състояние: БДС (шпакловка и замазка)
Отопление: Ток или възможност за газ
Тип строителство: Тухла, ново строителство
Етажност: 4
Асансьор: да
Изложение: разнообразно – включително юг, запад и панорама към планина
Обзавеждане: Необзаведени
Локация:
Районът съчетава тишина, чист въздух и панорамни гледки, с лесен достъп до основни пътни артерии – бул. Симеоновско шосе и Околовръстен път. В близост се намират търговски обекти, супермаркети, заведения, училища, спирки на градски транспорт и бъдеща метростанция.
Разпределението е:
Сградата е с четири етажа и включва само 16 апартамента – двустайни и тристайни, проектирани с функционални разпределения и просторни помещения. Част от апартаментите на партерно ниво разполагат със собствени двор-тереси. Към всяко жилище има прилежащо мазе.
Предимства на имота:
Висококачествено ново строителство
Малка и добре планирана сграда
Прекрасни гледки към Витоша и Стара планина
Възможност за закупуване на подземни паркоместа (от 21 000 €), гаражи (23 000 €) и наземни паркоместа (18 000 €)
Сградата е подходяща както за собствено ползване, така и за инвестиция и отдаване под наем
Район с потенциал за развитие и отлична инфраструктура
Спокойна улица с удобен достъп до града
Очакван срок на завършване: по проект
Оглед на имота:
Можем да организираме оглед на имота в удобно за Вас време. За целта, свържете се с отговорния за офертата брокер и му кажете кога бихте искали да направите оглед.
Резервация на имота:
Имотът може да бъде резервиран и свален от продажба със заплащане на депозит, след което се прекратява провеждането на огледи с други купувачи и започва подготовка на документите за сключване на предварителен и окончателен договор. Свържете се с отговорния брокер за този имот за подробна информация.
Финансиране на имота:
Агенцията си партнира с най-големия кредитен посредник в България и можем да ви съдействаме с преференциални условия за жилищно кредитиране.