




Луксозен тристаен апартамент до Зоопарка и Ловния парк
€250,000 (€2,308/m2)
488,957.50 лв. (4,514.01 лв./m2)
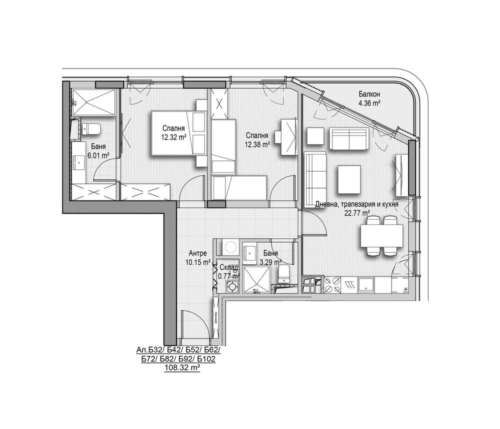
Архитектурен план

РС ЕСТЕЙТС предлага за продажба:
Тристаен апартамент в една от най-предпочитаните локации за живеене в кв.Витоша.
Площ: 108.32 кв.м. /чиста площ: 89.73 кв.м + общи части 18.59 кв.м/ + 22.48 кв.м идеални части от земята
Етаж: 4 / 18
Изложение: изток / север
Асансьор: да
Отопление: газ
Възможност за закупуване на паркомясто или гараж с допълнителна цена 35 000 Евро
Посочените цени са без ДДС!
Срок на завършване на сградата: 2027 година
Локация:
Близо до Дианабад и Студентски град, Ловен парк и Борисовата градина, на пешеходно разстояние от бул. Симеоновско шосе и бул. Г.М. Димитров. Сградата се отличава с модерна визия, висок клас материали и лесен достъп, сред много зеленина. Районът е с висок инвестиционен потенциал, както за закупуване на жилище така и за отдаване под наем. Сградата е в непосредствена близост до множество обществени обекти и паркове, сред които учебни институции, болници, хипермаркети, спортни центрове и основни пътни артерии, с бърз и удобен достъп до градски транспорт.
Разпределението е:
Антре и коридор, дневна с кухня и трапезария, 2 спални, 2 бани с тоалетна, балкон, склад.
Степен на завършване: Жилището се предлага на шпакловка и замазка. Перфектен подбор на материали, осигуряващи дълъг живот, лесна поддръжка и ниски енергийни разходи за бъдещите собственици.
Предимства на имота:
Доказан инвеститор с история;
Район с висок инвестиционен потенциал;
Модерно и качествено строителство;
Функционално разпределения на апартаментите;
Отлична локация и комуникативно място за живеене
Удобства - На ниво Партер се намират 4 търговски помещения, предлагащи всичко необходимо за удобството на живущите в сградата. Фотоволтаичните електроцентрали на покрива на сградата ще произвеждат повече от 110 000 кВтч чиста енергия на година, което ще покрива напълно потреблението на всички енергоконсуматори в общите части на комплекса.
Зелени площи и алеи - Паркоустройствения проект цели благоустрояване и естетизация на екстериорното пространство, със средствата на растителното изграждане и парковото обзавеждане както и постигане на баланс между застроени площи и вегетативни площи, в рамките на градоустройствените показатели.
Отопление и охлаждане - Отоплението в апартаментите е решено посредством инсталации с газови стенни котли и подово отопление със серпентини и отоплителни тела лири за санитарните възли. Охлаждането през летните периоди ще се осъществява посредством инверторни климатични агрегати за директно изпарение. При по-високите етажи отоплението и охлаждането е решено чрез инсталация, състояща се от термопомпен агрегат, подово отопление и вентилаторни конвектори за стенен монтаж.
ВиК - Водоснабдяването на сградите за битово-питейни и противопожарни нужди е от уличен водопровод. Отвеждането на битовите отпадъчни и дъждовни води от сградите е с помощта на смесени канализационни мрежи на ниво сутерен. Дъждовната канализационна система е решена посредством воронки и линейни отводнители, като част от дъждовните води се събират в резервоар за поливни нужди.
Електрическа инсталация - Електроинсталацията е разработена като самостоятелна за всяка от сградите с оглед по-лесна експлоатация. Присъединяването на сградата към електрическата мрежа е осъществено от новоизграден трафопост. Броят на осветителните тела и контактите във всеки апартамент е проектиран най-оптимално за нуждите на живущите. Осветлението в стълбищната клетка и коридорите се комутира с осветителни тела с вграден датчик за присъствие.
Асансьор - 2 високотехнологични, комфортни и тихи електрически пътнически асансьора, без машинно помещение – БЕЗРЕДУКТОРНО задвижване с 90% ефективност, безредукторен постоянно-магнитен синхронен двигател с VF регулиране в затворена верига.
Паркоместа - Разполага със 153 паркоместа и 12 гаража за автомобили. Предвидени са и зони с места за велосипеди. Сигурност - Сградата ще разполага с видеонаблюдение и денонощна охрана на входа на сградата. Сигурността и удобството на живущите ще е гарантирано с контрол на достъпа до подземните нива и входовете на сградите.
Оглед на имота:
Можем да организираме оглед на имота в удобно за Вас време. За целта, свържете се с отговорния за офертата брокер и му кажете кога бихте искали да направите оглед.
Резервация на имота:
Имотът може да бъде резервиран и свален от продажба със заплащане на депозит, след което се прекратява провеждането на огледи с други купувачи и започва подготовка на документите за сключване на предварителен и окончателен договор. Свържете се с отговорния брокер за този имот за подробна информация.
Финансиране на имота:
Агенцията си партнира с най-големия кредитен посредник в България и можем да ви съдействаме с преференциални условия за жилищно кредитиране.