




Къща в с. Житен
€232,103 (€1,438/m2)
453,954.01 лв. (2,811.91 лв./m2)
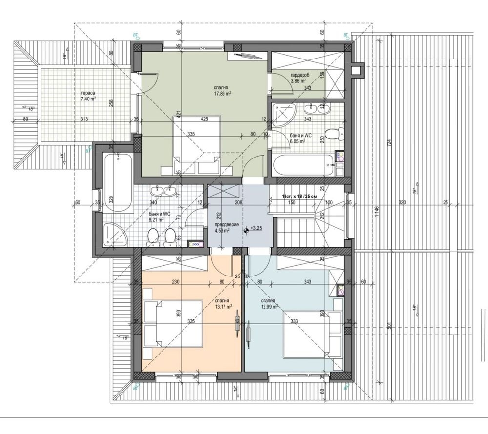
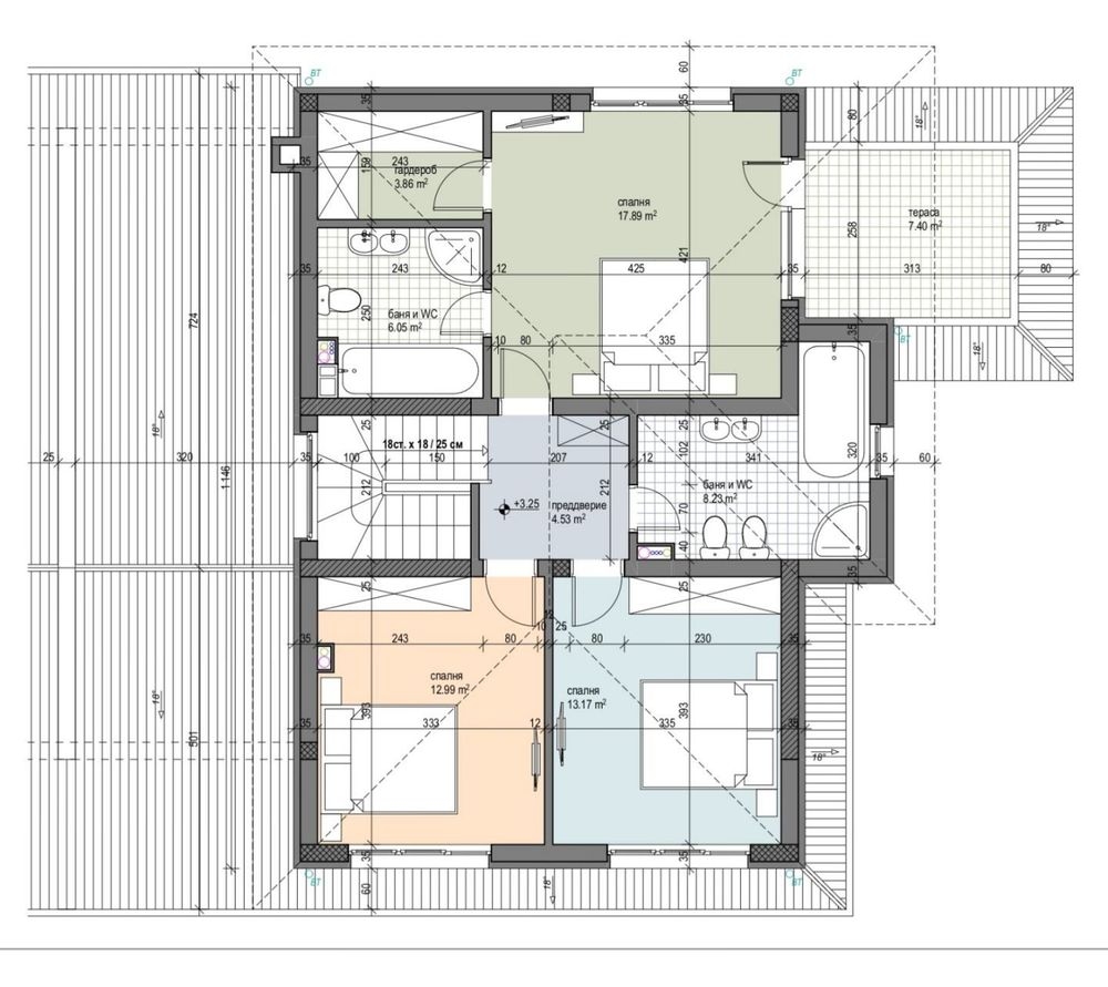
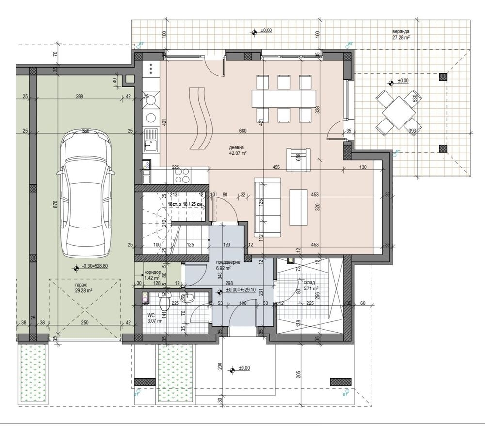
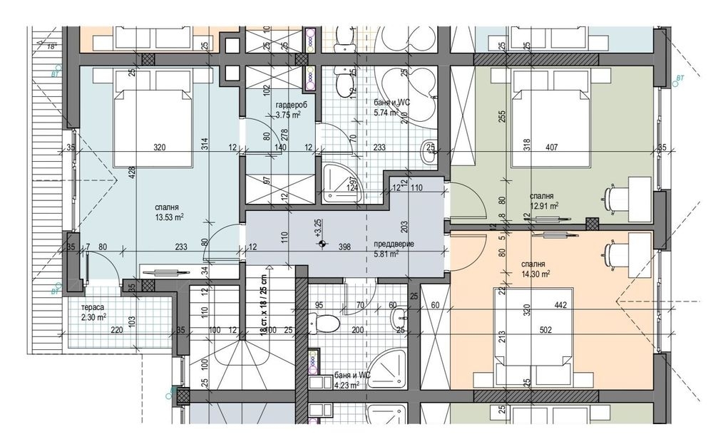
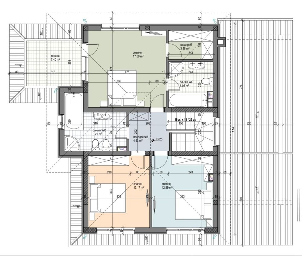
Архитектурен план







РС ЕСТЕЙТС предлага за продажба:
Новостроящи се редови къщи в с. Житен, Софийско, с модерна концепция за сигурна и спокойна жилищна среда.
Къщите са тухлено строителство с монолитна стоманобетонна конструкция и керамични тухли Wienerberger, с външни стени с топлоизолация и фасадна система BAUMIT, декоративни архитектурни елементи в дървесен цвят и 5-камерна PVC дограма със стъклопакет.
Предлаганият имот №7Б, тип редова къща, е с два надземни етажа и обща застроена площ 161,44 кв.м., двор 37,61 кв.м., три спални, две бани и две външни паркоместа.
Предлагат се и други редови къщи и тип близнак с площ от 161,06 кв.м. до 269,45 кв.м.
Срокът за завършване е до края на 2026 г., като обявената цена е без ДДС.
Локация:
Селото е разположено на около 15 км от София, в подножието на Стара планина, в спокойна и зелена среда, подходяща за целогодишно живеене, с бърз достъп до столицата и съчетание между тишина, чист въздух и удобна връзка с градската инфраструктура.
Разпределението е:
Двуетажна къща с дневна зона, кухня и трапезария с изводи за вода и канализация, три спални, антрета и коридори, две бани с подготвени ВиК изводи, тераси със стъклен парапет и осветление, веранда и двор, като помещенията се издават на машинна мазилка и циментова замазка.
Изградени са електроинсталация с медни проводници, ВиК инсталация за студена и топла вода, отоплителна инсталация за пелети или термопомпа без крайни тела, както и подготовка за климатизация във всяка стая.
Входната врата е блиндирана, покривът е с хидро- и топлоизолация и керамични керемиди, а дворът е с изпълнена ограда, вертикална планировка, озеленяване и осветление.
Предимства на имота:
ново строителство;
три спални;
собствен двор;
две паркоместа;
изградени инсталации;
блиндирана входна врата;
контрол на достъпа и охрана; СОТ;
спокойна извънградска среда;
възможност за избор между различни типове къщи и квадратури.
Оглед на имота:
Можем да организираме оглед на имота в удобно за Вас време. За целта, свържете се с отговорния за офертата брокер и му кажете кога бихте искали да направите оглед.
Резервация на имота:
Имотът може да бъде резервиран и свален от продажба със заплащане на депозит, след което се прекратява провеждането на огледи с други купувачи и започва подготовка на документите за сключване на предварителен и окончателен договор. Свържете се с отговорния брокер за този имот за подробна информация.
Финансиране на имота:
Агенцията си партнира с най-големия кредитен посредник в България и можем да ви съдействаме с преференциални условия за жилищно кредитиране.