
Двустаен в комплекс Central Park Банишора
€176,000 (€2,750/m2)
344,226.08 лв. (5,378.53 лв./m2)
Архитектурен план

Видео презентация
РС ЕСТЕЙТС предлага за продажба:
Двустаен апартамент находящ се на десети етаж в хитовия комплекс Сетрал парк. Сградата има Акт 16, строителството е висок клас с окачена фасада, а големите прозорци допринасят за добра осветеност на помещенията. Изложението е изток.
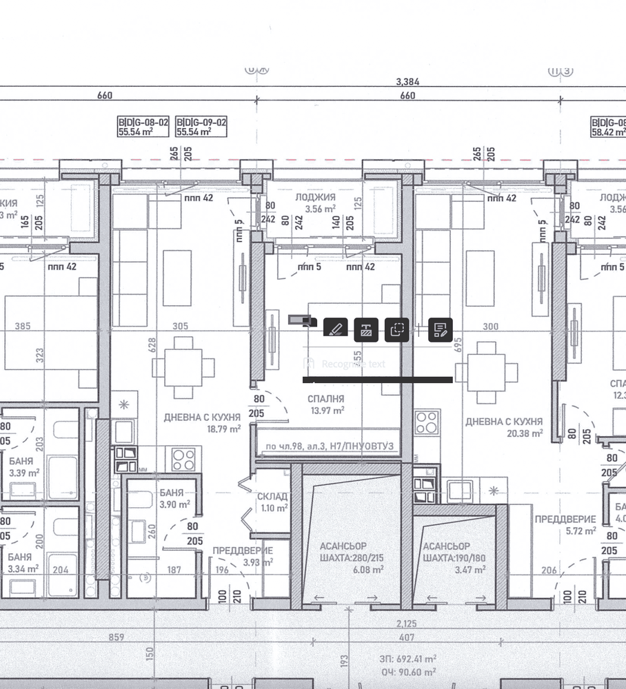
Разпределението на жилищата е: Вход към баня с тоалетна, ниша за мокро, дневна с кухненски бокс и излас на тераса тип лоджия, спалня. Прокарани са изводи за климатици, а комплекса се отоплява на ТЕЦ. Имотът е с ЗП 55м2 и РЗП от 64м2. Към комплкеса има такса поддръжка и възможност за покупка на подземни гаражи.
Central Park е едно от архитектурните съкровища на столицата. Така, с духа на нюйоркския стил мястото ще заблести не само като дом за стотици хора, но и ще даде нов облик на района и града. Създадената паркова среда в сърцето на комплекса ще се простира на близо 12 000 кв. м., осигурявайки едновременно възможности за пълноценен отдих, спорт, развлечения и безопасни забавления за най-малките. Застроителното решение е продиктувано от търсенето на високо качество на жилищната среда, с макро- и микроклиматични условия, допринасящи за комфорта на обитаване – голямото разстоянието между сградите, ориентацията им спрямо световните посоки, извършеният анализ на ослънчаването, вложените съвременни строителни продукти ще допринасят не само за постигнатия висок клас на енергийна ефективност, но и за оптималното пространствено възприемане на създадената градска среда.
Локацията:
инфраструктурата и достъпът са ключов елемент при избор на жилище. Затвореният комплекс Central Park се намира в един от перспективните столични райони в широкия градски център, очертан от улиците „Опълченска“ и „Скопие“ и булевардите „Сливница“ и „Княгиня Мария Луиза“. Близостта до мрежата на Метрополитена, както и преминаващите по периферията на квартала автобусни, тролейбусни и трамвайни трасета на масов градски транспорт превръщат района в отлично място за живеене, с осигурени бързи връзки с централни и тангенциални части от града.
Central Park се намира на пешеходно разстояние от:
• Магазин Kaufland
• Метростанция „Княгиня Мария Луиза“
• Спирки на градски транспорт
• ДГ 48 „Братя Грим“
• Частна детска градина Йоур кидс
• 100 ОУ „Найден Геров“
• 33 Езикова гимназия „Света София“
• МБАЛ „Княгиня Клементина“ София ЕАД
• ДКЦ 7
• Уникредит Булбанк
• Фитнес, ресторант, сладкарница
Ниският интензитет на застрояване на заобикалящата комплекса градска среда, спиращите дъха гледки към Витоша и близостта до основни градски паркове, както и добре балансираните възможности за обществено обслужване, разположени по периферията, вдъхновяват проектантите от AZ+Partners Ltd. при реализиране на концепцията за комплекса, превръщайки семплото градоустройственото решение по северноамерикански и западноевропейски модел в „оазис на спокойствието“, не случайно наричайки го Central Park.
Предимства на имота:
Central Park е създаден и проектиран, за да постигане балансирана градска среда, благоприятстваща устойчив и съвременен начин на живот. Разположен върху парцел с площ от близо 30 дка, комплексът се състои от седем сгради с височина 50 м., с разгъната застроена площ от близо 90 000 кв. м., при ниска плътност на застрояване от малко над 10 000 кв. м., благоприятстваща развитието на зелената система и пространствата за отдих и социална комуникация, допринасящи от своя страна за постигнатия висок комфорт на обитаване.
Компонентите на парковата среда включват:
• широки алеи за разходка и джогинг;
• просторни площадни пространства за кратък отдих и развлечения;
• безопасни и интересни площадки за игра за различни възрастови групи;
• съвременно оборудван спортен кът с различни транировъчни уреди за стрийт фитнес;
• тихи и спокойни кътове за отдих и отмора;
• богата растителност, композирана в унисон с плановото решение – пейзажно и със свежи тонове, осигурявайки допълнителен шумов комфорт на вътрешните пространства.
Проектираните по най-висок стандарт 872 жилища с оптимална функционална схема, предоставяща бъдещи възможности за свободна и адаптивна планова схема, както и близо 30-те търговски обекта с най-различни мащаби са комуникационно обезпечени от близо 1 000 места за паркиране, разпределени в удобни подземни гаражи. Осигурените над 300 велопаркоместа създават съвременни възможности за алтернативен транспорт и начин на придвижване.