


Двустаен апартамент в новострояща се сграда в кв. Драгалевци
€130,000 (€2,263/m2)
254,257.90 лв. (4,426.50 лв./m2)
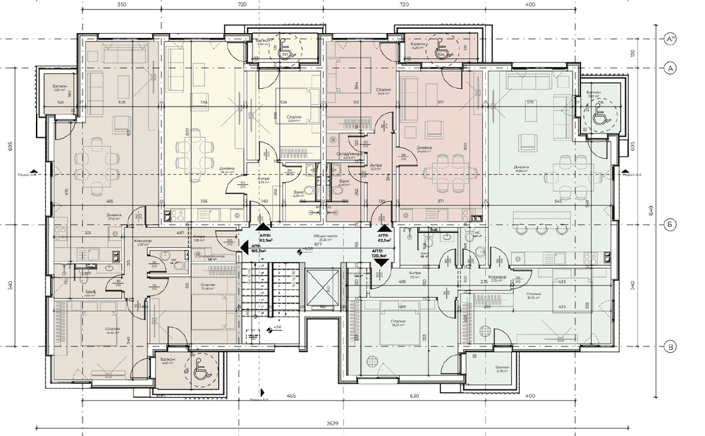
Архитектурен план


РС ЕСТЕЙТС предлага за продажба:
Двустаен апартамент в новострояща се бутикова жилищна сграда, находяща се в гр. София, кв. Драгалевци, в полите на Витоша.
Сградата е с модерна архитектура, само 12 жилища и 3 жилищни етажа, разположена в предпочитан район с чист въздух и спокойна жилищна среда. Проектът се отличава с функционални разпределения, просторни и добре осветени дневни, високи показатели на енергийна ефективност и възможност за закупуване на до 3 подземни паркоместа към всяко жилище. Част от апартаментите разполагат със собствен двор, а от по-високите етажи се открива панорамна гледка към планината.
Налични за продажба са:
– Двустаен апартамент 01 с площ от 57,44 кв.м. на цена € 130 000;
– Подземно паркомясто - € 35 000.
– Тристаен апартамент 12 с площ от 141,36 кв.м. на цена € 360 000;
– Подземни паркоместа на цени от € 35 000 до 39 000.
Очаквани срокове на изпълнение:
Старт на строителството – декември 2025 г.;
Акт 14 – юни 2026 г.;
Акт 15 – февруари 2027 г.;
Акт 16 – октомври 2027 г.
За проекта е осигурено финансиране, което гарантира завършването му в срок.
Локация:
гр. София, кв. Драгалевци.
Разпределение:
Дневна с кухненски бокс, спалня, баня с тоалетна и тераса (съгласно архитектурния проект).
Предимства на имота:
Бутикова сграда с ограничен брой жилища, спокойна и зелена среда, панорамни гледки, модерна визия, възможност за собствен двор, енергийна ефективност, осигурено проектно финансиране и гарантирани срокове на изпълнение.
Стандартна схема на плащане:
30% – при подписване на предварителен договор;
50% – при издадено удостоверение по чл. 181 (с възможност за финансиране с банков кредит);
10% – при изготвен Образец Акт 15;
10% – при въвеждане в експлоатация на сградата (Образец Акт 16).
Строително изпълнение:
Строителството се изпълнява с подбрани висококачествени материали.
– Тухлена зидария: външни стени – керамична тухла 25 см Wienerberger; вътрешни стени – керамична тухла 12 см Wienerberger.
– Фасада: окачена фасада с керамично покритие и топлоизолационна система (минимум 10 см), комбинирана със структурна мазилка по проект.
– Апартаменти: под – циментова замазка; стени и тавани – гипсова мазилка; монтирана входна блиндирана врата с падащ праг.
– Общ подземен гараж: автоматична гаражна врата; под – шлайфан бетон; стени – мазилка.
– Дограма: PVC профил Kömmerling със 7 камери и троен стъклопакет с отлична енергийна ефективност и шумоизолация.
– Отопление: предвидена разводка за термопомпа и вътрешни тела на електричество; възможност за изграждане на подово отопление срещу допълнително заплащане по желание на клиента.
– Асансьор: електрически за 6–8 лица с автоматични врати.
– Общи части: луксозна и съвременна визия с осветление, гранитогрес и стенни облицовки по интериорен проект.
Оглед на имота:
Можем да организираме оглед на имота в удобно за Вас време. За целта, свържете се с отговорния за офертата брокер и му кажете кога бихте искали да направите оглед.
Резервация на имота:
Имотът може да бъде резервиран и свален от продажба със заплащане на депозит, след което се прекратява провеждането на огледи с други купувачи и започва подготовка на документите за сключване на предварителен и окончателен договор. Свържете се с отговорния брокер за този имот за подробна информация.
Финансиране на имота:
Агенцията си партнира с най-големия кредитен посредник в България и можем да ви съдействаме с преференциални условия за жилищно кредитиране.