




Двуетажна къща номер 1 в с. Алдомировци
€199,000 (€1,567/m2)
389,210.17 лв. (3,064.65 лв./m2)

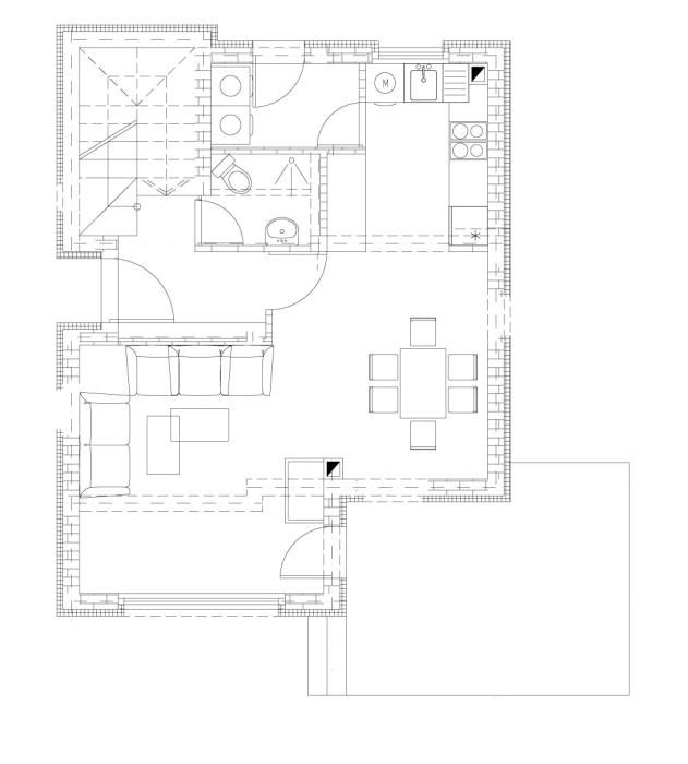
Архитектурен план



RS Estates предлага за продажба:
Двуетажна фамилна къща близо до София с разгъната застроена площ от 127 м². Имотът в с. Алдомировци е идеален за семейства, които ценят комфорта и пространството. На първия етаж ще откриете просторна дневна с трапезария и кухня – идеално място за събирания с приятели и близки. На втория етаж са разположени две светли и комфортни спални, които предлагат уединение и спокойствие. Покритата веранда с изход към двора е перфектното място за сутрешно кафе или вечерен релакс сред природата.
Локация
Къщата се намира в местност “Трохало”, с. Алдомировци, гр. Сливница. Село Алдомировци е спокойно и зелено кътче, само на 28 км от София, 4 км от Сливница и 7 км от Драгоман. Ако търсите къщи за продан близо до София, които осигуряват бърза и удобна връзка със столицата, Trohalo Homes е Вашето място
Разпределението е:
Етаж 1 – 63,05 м²
- Дневна с трапезария и кухня - 31,6 м²
- Склад 3,3 м²
- Баня с тоалетна 2,5 м²
- Покрита веранда с директна връзка към живописния двор.
Етаж 2 – 55,45 м²
- 2 спални 12,8 м² и 12,9 м²
- Баня с тоалетна 3,40 м²
- Тераса 8 кв.м
Всеки дом осигурява лично пространство и възможност за персонализиране на интериора, така че да отговаря на нуждите и стила на своите обитатели.
Ново строителство къщи до София
При изграждането на имота в Алдомировци са използвани висококачествени материали и съвременни технологии, които гарантират здравина, енергийна ефективност и модерен комфорт.
Основната стоманобетонна конструкция осигурява дълготрайност и стабилност, а 7-камерната алуминиева дограма в цвят сиво шегре допринася за отлична топло- и шумоизолация. Фасадата комбинира естествен камък и дървесна имитация, за да придаде елегантен и хармоничен акцент, съобразен със заобикалящата природната среда.
Отопление
За отопление е предвидена енергийно ефективна термопомпена система, осигуряваща екологичен и икономичен начин за поддържане на комфортна температура през всички сезони. (Системата не е включена в продажната цена и се заплаща допълнително.)
При предаване на имота ще откриете:
- Стени, завършени с мазилка и шпакловка;
- Френски прозорци, които осигуряват естествена светлина през целия ден;
- Дворове, подготвени за озеленяване, което позволява персонализирано оформление;
- Интернет връзка, изведена до всяко помещение;
- Входна врата с висок клас термоизолация, отговаряща на стандартите за нискоенергийни имоти близо до София.
Допълнителни предимства:
- Всяка къща разполага със собствена пречиствателна станция, а пречистената вода може да се използва за поливни нужди.
- Подовете са изпълнени с армирана замазка, в която са заложени тръби за водно подово отопление.
- Вътрешни огради между къщите, които гарантират лично пространство.
Повече за комплекса:
Trohalo homes се състои от 19 самостоятелни светли, просторни и функционални домове с дворна площ от 480 до 600 м². Предлагат се 3 вида къщи в село Алдомировци проектирани с удобни и функционални вътрешни пространства, които отговарят на съвременните изисквания за комфорт. Комплексът се намира на 20-30 минути с кола от София. Село Алдомировци разполага с жп гара и редовни линии до София.
Ако мечтаете за уютен дом с просторен двор, където можете да се насладите на спокойствие, чист въздух и сигурна среда за Вашето семейство, тези имоти близо до Сливница и София са идеалният избор.
Оглед на имота
Можем да организираме оглед на имота в село Алдомировци в удобно за Вас време. За целта, свържете се с отговорния брокер за продажба на къщи извън София и му кажете кога бихте искали да направите оглед.
Резервация на имота
Имотът може да бъде резервиран и свален от продажба със заплащане на депозит, след което се прекратява провеждането на огледи с други купувачи и започва подготовка на документите за сключване на предварителен и окончателен договор. Свържете се с отговорния брокер за тази къща на зелено до София за подробна информация
Схеми за плащане:
Стандартна: 30% на ПД, 30% акт 14, 20% на акт 15, 20% на акт 16.
Схема с отстъпка: 50 % на ПД, 30% на акт 14 и 20 % на акт 16 - отстъпка 2 % от цената.
Банково кредитиране: 20 % на ПД , 70 % на акт 14 и 10 % на акт 16.
Финансиране на имота:
RS Estates си партнира с най-големия кредитен посредник в България и можем да Ви съдействаме с преференциални условия за жилищно кредитиране. Предлагаме продажба на имоти близо до София, с възможност за гъвкаво финансиране, съобразено с Вашите нужди.
Срокове на строителство:
Акт 14 за къща 1- Април 2025 г.
Акт 14 за къща 4 - Юни 2025 г.
Акт 14 за къща 7 - Септември 2025 г.
Акт 15 за къщи 1 - Декември 2025 г.
Акт 15 за къщи 4 - Март 2026 г.
Акт 15 за къщи 7 - Май 2026 г.
Акт 16 до Януари 2027 г. (инвеститорът си запазва правото да променя сроковете на изпълнение).