




Четиристайно ателие с големи тераси в кв. Манастирски ливади
€415,000 (€3,300/m2)
811,669.45 лв. (6,454.63 лв./m2)
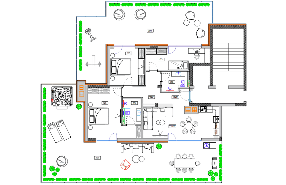
Архитектурен план

Видео презентация
РС ЕСТЕЙТС предлага за продажба:
Просторно четиристайно ателие с впечатляваща панорамна тераса в кв. „Манастирски ливади – Запад“. Жилището е разположено в нова сграда с Акт 16 и отлично поддържани общи части, с възможност за закупуване на паркомясто.
Ателието е с обща площ от 125.72 кв.м, към която принадлежи голяма тераса от 151 кв.м, предлагаща открита гледка и допълнителен комфорт. Чистата жилищна площ е 102.99 кв.м, а към имота има и склад с площ 2.5 кв.м. Изложението е юг, запад и север, което гарантира много естествена светлина и добра вентилация през целия ден. Имотът се предлага в състояние, подходящо за бързо нанасяне.
Локация:
Ателието се намира в тиха и спокойна част на кв. „Манастирски ливади – Запад“, в непосредствена близост до бул. „България“ и бул. „Тодор Каблешков“. Районът предлага удобен достъп до търговски обекти, заведения, училища и детски градини, както и разнообразен градски транспорт, който осигурява бърза връзка с централните части на София.
Разпределението е:
Дневна с куненски кът, три самостоятелни стаи, две бани с тоалетни, коридор и две големи покривни тераси (60.91 кв.м. и 89.09 кв.м.).
Предимства на имота:
Нова сграда с Акт 16 и хубави общи части;
впечатляващи тераси с обща площ 151 кв.м;
отлично изложение с много светлина;
складово помещение;
възможност за закупуване на паркомясто;
комуникативна и същевременно спокойна локация.
Оглед на имота:
Можем да организираме оглед на имота в удобно за Вас време. За целта, свържете се с отговорния за офертата брокер и му кажете кога бихте искали да направите оглед.
Резервация на имота:
Имотът може да бъде резервиран и свален от продажба със заплащане на депозит, след което се прекратява провеждането на огледи с други купувачи и започва подготовка на документите за сключване на предварителен и окончателен договор. Свържете се с отговорния брокер за този имот за подробна информация.
Финансиране на имота:
Агенцията си партнира с най-големия кредитен посредник в България и можем да ви съдействаме с преференциални условия за жилищно кредитиране.