




Четиристаен апартамент в кв. Драгалевци
€360,000 (€1,756/m2)
704,098.80 лв. (3,434.63 лв./m2)

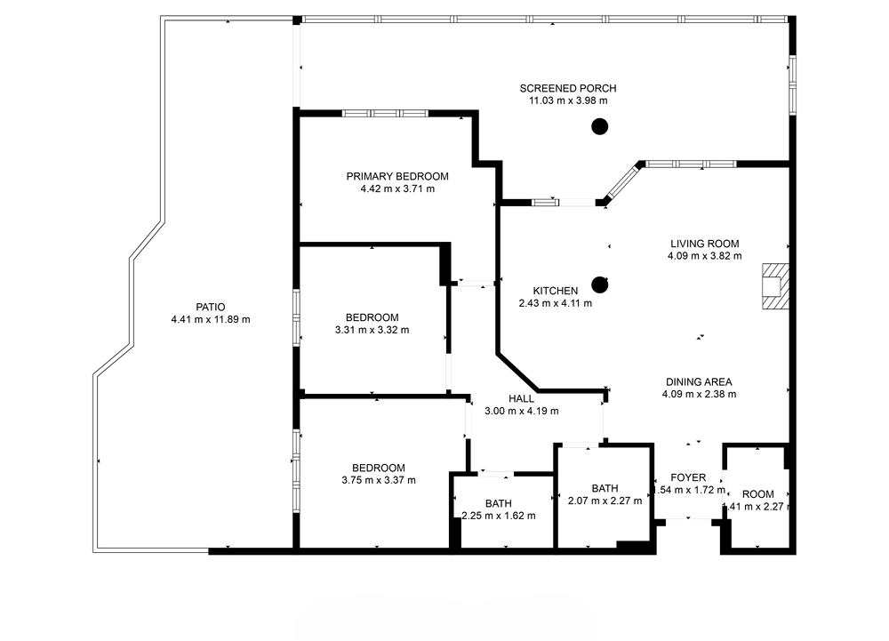
Архитектурен план


РС Естейт представя за продажба:
Просторен четиристаен апартамент в затворен комплекс, състоящ се от 3 четириетажни тухлени сгради.
Локация:
Имотът се намира в Драгалевци, с бърз достъп до Околовръстния път, бул. Черни връх, Фантастико, училище Британика Парк, ресторанти и други удобства. Комплексът е добре поддържан и озеленен, със заключващ се портал и контролиран достъп. Във вътрешния двор има детска площадка.
Апартаментът е с площ от 205 кв.м., разположен на 1-ви етаж от 4-етажна сграда. Комплексът разполага с вътрешен открит паркинг, предназначен за общо ползване от живущите.
Разпределение:
- Просторен хол с действаща камина, обединен с кухненски бокс и трапезария
- Три самостоятелни спални
- Две бани с тоалетни
- Килер
- Голяма тераса от 80 кв.м., частично остъклена (35 кв.м.) с барбекю зона.
Предимства:
Апартаментът е завършен с качествени материали, като голямата тераса осигурява допълнително пространство за отдих и семейни събирания.
Имотът е светъл, функционален и подходящ за голямо семейство. Отоплението е на ток.
Месечна такса поддръжка - 55 евро.
Оглед на имота:
Свържете се с отговорния брокер за този имот за подробна информация.
Резервация на имота:
Имотът може да бъде резервиран и свален от продажба със заплащане на депозит, след което се прекратява провеждането на огледи с други купувачи и започва подготовка на документите за сключване на предварителен и окончателен договор. Свържете се с отговорния брокер за този имот за подробна информация.
Финансиране на имота:
Агенцията си партнира с най-големия кредитен посредник в България и можем да ви съдействаме с преференциални условия за жилищно кредитиране.